✔ Privatverkauf – Keine Maklerprovision

Doppelhaushälfte mit Gewerbeeinheit in Hilden-West

📍 Telleringstraße 14 (Wohnhaus) / 16 (Gewerbe), 40721 Hilden, NRW
Kaufpreis
690.000 €
Provisionsfrei
Wohnfläche
153 m²
Wohnhaus DHH
Gewerbefläche
276 m²
Büro + Lager
Grundstück
789 m²
3 Flurstücke
Baujahre
1936/1995
Wohn-/Gewerbe
Stellplätze
5
2 offen + 3 überdacht
Heizung Gewerbe
Neu 2024
Gas
Verkehrswert
745.000 €
Gutachten 03/2025
🏠 Objektbeschreibung

Wohnen und Arbeiten unter einem Dach – ideal für Handwerker und Gewerbetreibende.

Morgens die Treppe runter, das Rolltor auf – und direkt in der eigenen Halle loslegen. Kein Pendeln, kein teurer Gewerbemietvertrag, kein Zeitverlust. Diese Immobilie in Hilden-West macht genau das möglich: ein vollwertiges Wohnhaus mit 153 m² und eine eigenständige Gewerbehalle mit 276 m² – beides auf einem Grundstück, in Ihrem Eigentum.

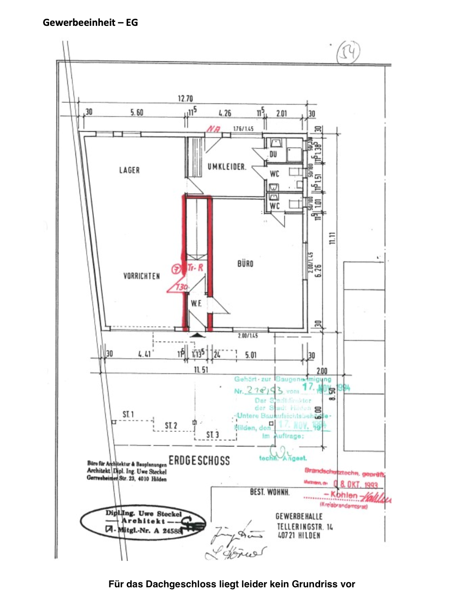
Die Gewerbehalle bietet alles, was ein Handwerksbetrieb braucht: eine Lagerhalle im EG (ca. 55 m² ebenerdig über Rolltor, insgesamt ca. 164 m² Lagerfläche) mit direkter Einfahrt für Transporter und Materiallieferungen, Büro- und Sozialräume (ca. 56 m²), drei überdachte Stellplätze für Fahrzeuge und Anhänger – und einen großzügigen Keller für weiteres Lager. Die Gasheizung wurde 2024 komplett erneuert.

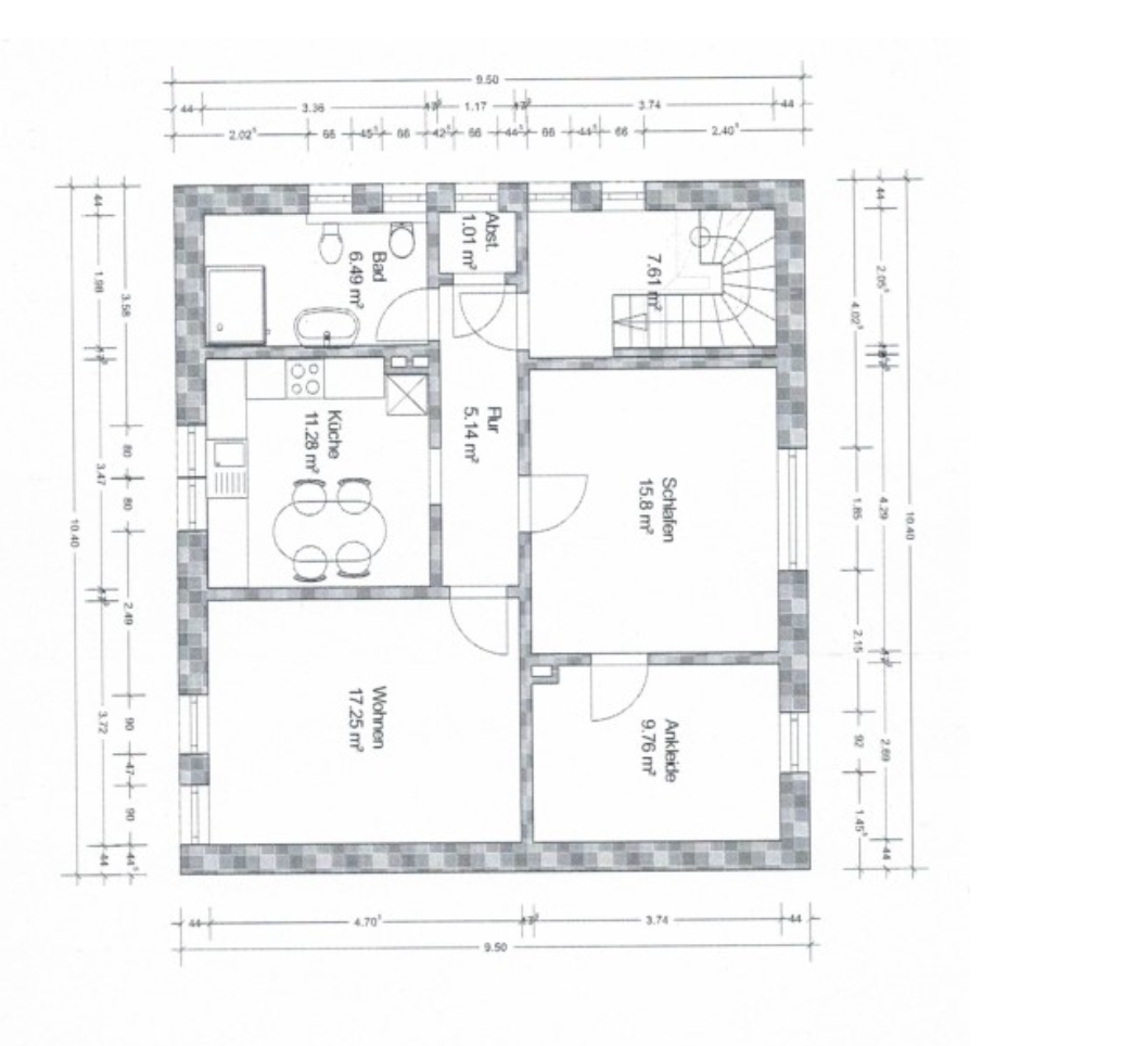
Das Wohnhaus (Doppelhaushälfte, ca. 1936) bietet auf drei Vollgeschossen echten Wohnkomfort mit ca. 153 m², modernisierten Bädern, einem Keller und zwei Stellplätzen. Beide Einheiten lassen sich bei Bedarf auch rechtlich trennen (Realteilung möglich, ca. 5.000 € Baulastkosten). Ein unabhängiges DAkkS-Gutachten (31.03.2025) weist 745.000 € aus – Angebotspreis: 690.000 €.

Kein Hochwasserrisiko Keine Altlasten Keine Baulasten Provisionsfrei 🔥 Gasheizung Gewerbe NEU 2024 ✂️ Realteilung möglich
🏠 Eckdaten Wohnhaus
ObjektartDoppelhaushälfte (DHH)
Baujahrca. 1936
BauweiseMauerwerk, Walmdach mit Gaube
Geschosse3 Vollgeschosse + Keller
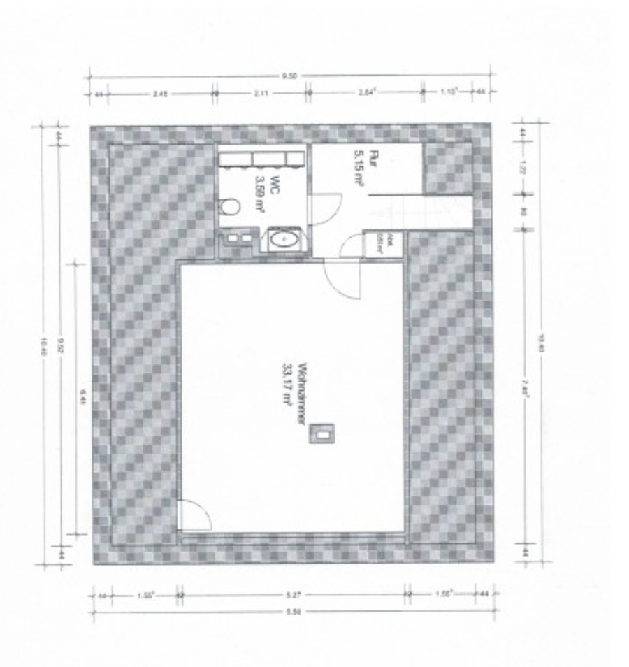
Wohnfläche EGca. 67 m²
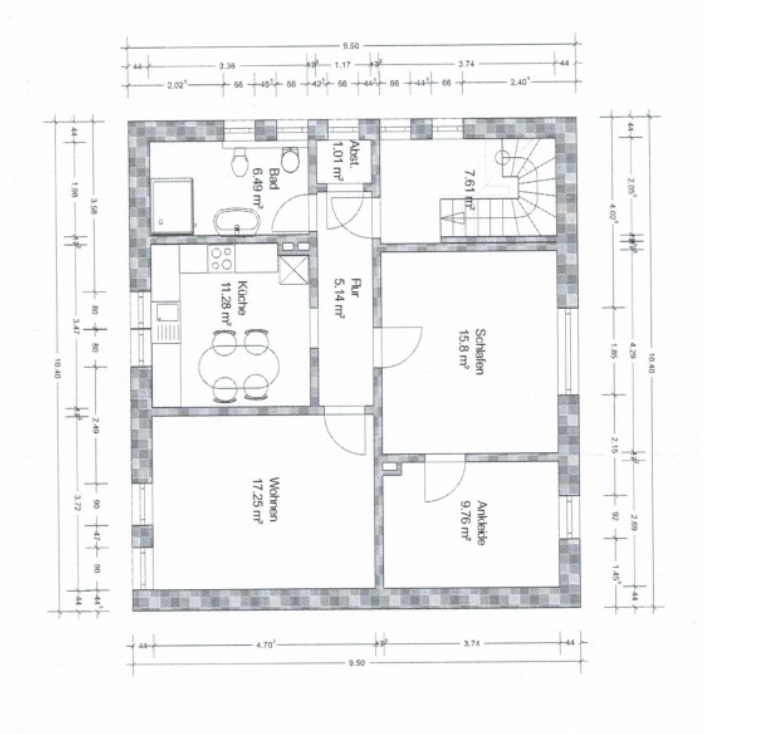
Wohnfläche OG/DGca. 86 m²
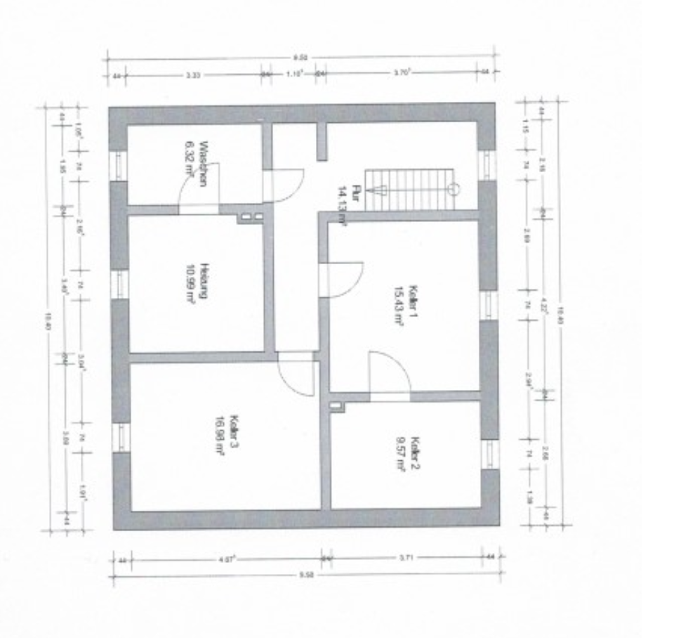
KellerKellergeschoss (Lager)
BäderModernisiert ca. 2000–2005
FensterDoppelverglasung, Kunststoffrahmen
Stellplätze2 (oberirdisch)
HochwasserKein Risiko
AltlastenKeine (geprüft 27.01.2025)
BaulastenKeine
EnergieausweisWird erstellt
🏭 Eckdaten Gewerbeeinheit (Telleringstr. 16)
BaujahrDezember 1995
Büro- / Sozialräumeca. 56 m²
Lagerhalle EGca. 55 m² ebenerdig über Rolltor (ges. ca. 164 m² Lager)
Spitzboden DGca. 56 m² (Nachgenehmigung)
Kellerca. 109 m², 2 Lagerräume + Hobbyraum + Sauna + Dusche/WC
Vordach/Carportca. 69 m²
Rolltor1 × zur Lagerhalle
Stellplätze3 (überdacht)
HeizungGasheizung NEU 2024
WarmwasserDezentral (Durchlauferhitzer)
BebauungsplanBP Nr. 4 'Hilden-West" (GIe)
RealteilungMöglich (~5.000 € Baulast)
Highlights für Investoren
Fiktive Teilbarkeit – zwei Einheiten, ein Grundstück
Wohnhaus und Gewerbeeinheit können als eigenständige Grundstücke ausgewiesen werden. Ideal für Investoren, die nur eine Einheit erwerben möchten. Baulastkosten ca. 5.000 €.
Realteilung möglich
276 m² Gewerbefläche mit Rolltor und Büro
Gliedertes Industriegebiet, Lagerhalle mit Rolltor, überdachte Stellplätze – geeignet für Handwerk, Logistik, Lager oder Büronutzung.
Gewerbegebiet
Neue Gasheizung in der Gewerbeeinheit (2024)
Die Heizungsanlage wurde 2024 vollständig erneuert. Kein kurzfristiger Investitionsbedarf in diesem Bereich.
Modernisiert 2024
S-Bahn Hilden nur 200 m – Düsseldorf Hbf in 15 Min.
5 Gehminuten zum S-Bahnhof Hilden mit Direktverbindung nach Düsseldorf. Autobahn A3/A46 in ca. 4 km Entfernung.
55.000 € unter Verkehrswert – DAkkS-Gutachten vorhanden
Unabhängiges Gutachten von Dr. Paul Kaplan (DAkkS-zertifiziert, DIN ISO EN/IEC 17024) weist 745.000 € aus. Angebotspreis: 690.000 €.
Unter Verkehrswert
Lastenfrei, keine Altlasten, kein Hochwasserrisiko
Altlastenkataster geprüft am 27.01.2025: keine Einträge. Keine Baulasten. Hochwasserrisiko: keines. Klare Eigentumsverhältnisse.
💼 Kapitalanlage – 6,2 % Bruttomietrendite

Die monatlichen Mieteinnahmen betragen aktuell 3.580 € warm – das entspricht einer Bruttomietrendite von ca. 6,2 % bezogen auf den Angebotspreis von 690.000 €.

Wohnhaus EGca. 67 m²680 €/Monat
Wohnhaus OG/DGca. 86 m²900 €/Monat
Gewerbe Telleringstr. 16ca. 276 m²2.000 €/Monat
Gesamt3.580 €/Monat
Reale Eigentümerkosten (Versicherungen + Gas & Wartung): ca. 680 €/Monat
Kein Makler = 0 % Käuferprovision (spart gegenüber Maklerverkauf ca. 24.630 €)
📄 Verkehrswertgutachten
DAkkS-zertifiziert · DIN ISO EN/IEC 17024
Verkehrswertgutachten gem. § 194 BauGB
Sachverständiger: Dr. Paul Kaplan (geb. Sobota)
Stichtag: 31.03.2025  |  AZ: HD-ZFH-TS14
Verfahren: Sachwertverfahren (Wohnhaus) + Ertragswertverfahren (Gewerbe)
Verkehrswert
745.000 €
Angebotspreis: 690.000 €
Differenz
– 55.000 €
Das Gutachten steht qualifizierten Interessenten auf Anfrage zur Einsicht zur Verfügung. Alle Angaben ohne Gewähr – maßgeblich ist das vorliegende Verkehrswertgutachten.
📍 Lage & Verkehrsanbindung
🚉 S-Bahn Hilden – 200 m
🏙️ Hilden Innenstadt – 1 km
🛣️ A3/A46 – 4 km
🏥 Krankenhaus – 2 km
🚆 Düsseldorf Hbf – 15 Min.